Elections to the CTU Academic Senate and the CTU FA Academic Senate will take place electronically on 26 and 27 November 2025 at volby.cvut.cz.

Exhibition of Studio Projects

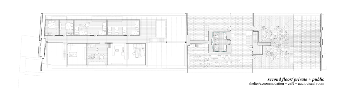
Reactivation of Cistercian Pilgrim Route and Plasy Craftmanships

Noah Moreno Yokota

Annotation

Rooted in local craft and cultural memory, this project reactivates the former stables of the Plasy monastery as a space for community, reflection, and exchange. It blends public and private uses—workshops, shelters for pilgrims, and collective spaces—while preserving the historical structure. The intervention promotes continuity through material honesty, minimal impact, and the reinterpretation of local techniques. Its core strategy is a box-in-box system: a new wooden volume inserted within the existing shell to ensure comfort, reversibility, and respect for the heritage.

For the content of this site is responsible: doc. Ing. arch. Tomáš Efler