Práce ateliérů ZAN
Turnov-Malířský ateliér

Anotace
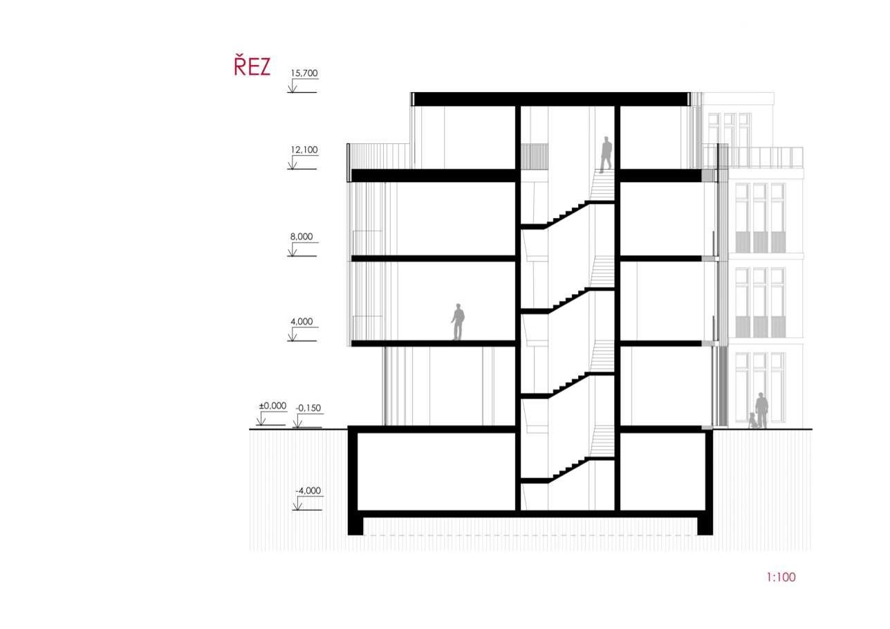
Dům má čtyři podlaží.
Spojuje umění, bydlení a veřejný prostor.
Je navržen jako otevřený a světlý.
V přízemí je galerie, kavárna a recepce.
Galerie je prosklená, viditelná z ulice.
První podlaží je ustoupené a tvoří podloubí s lavičkami.
Druhé podlaží tvoří dva ateliéry, které jsou prostorné a světlé.
Každý má lodžii s květinami.
Ve třetím patře je ateliér spojený s bytem.
Je určen pro bydlení i tvorbu.
Čtvrté podlaží tvoří byt s terasou.
Fasáda je z kopelitových panelů.
Propouští světlo, ale chrání soukromí.
Zeleň v lodžiích také zjemňuje výraz domu.