Práce ateliérů ZAN
Observatoř krajiny Tichého údolí | Příroda pod pokličkou

Anotace
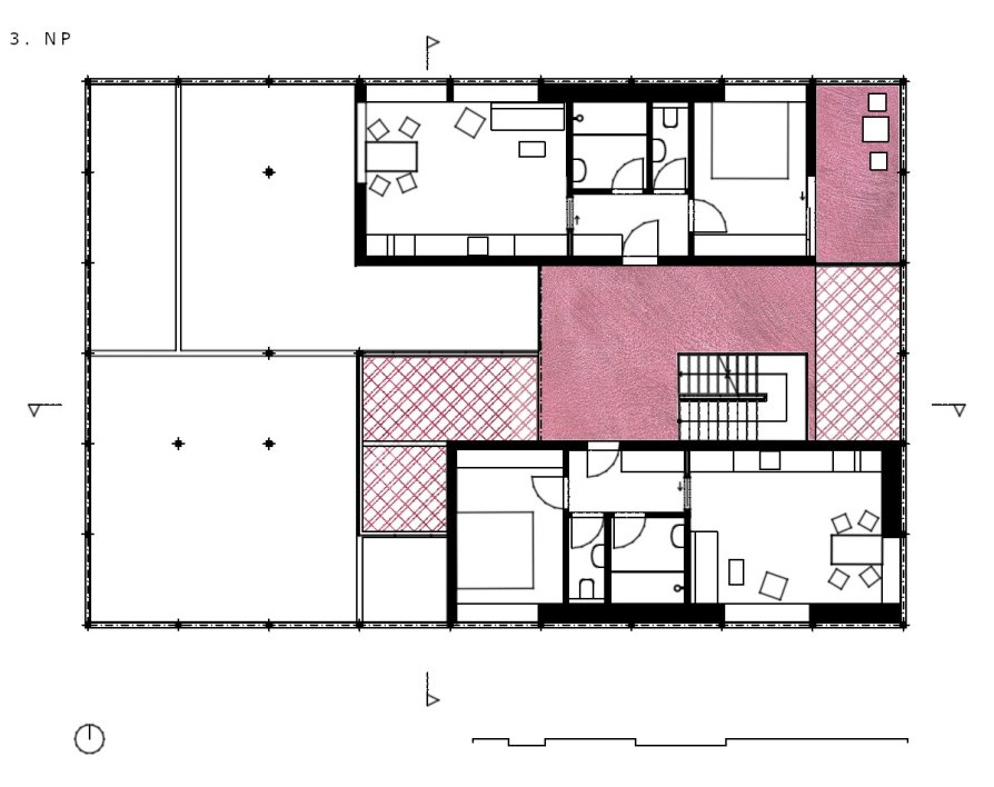
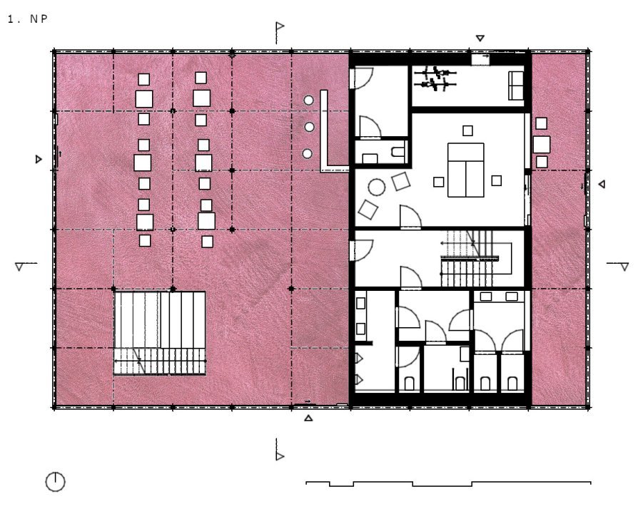
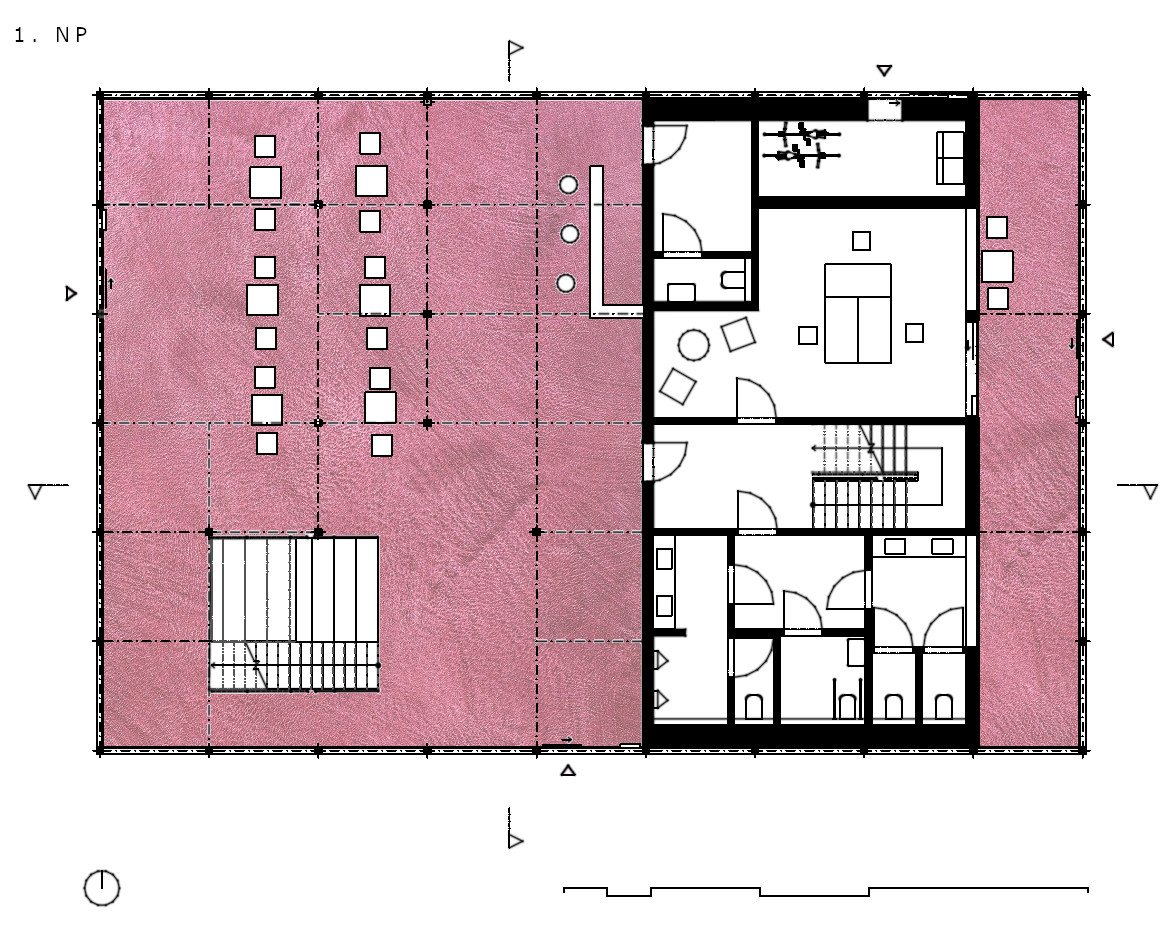
Dům, který přivítá kolemjdoucí příjemným vnitřním klimatem, nehledě na počasí. Průsvitný obal vytváří vzdušný prostor, naplněný světlem a rostlinami, které se pnou po vzhůru po konstrukci. V chladných měsících poskytuje vlídné prostředí, a slouží jako velká zimní zahrada. V horkých dnech lze dům otevřít do okolní přírody. V síti trámů a sloupů vzniká prostor pro pobytové sítě, ze kterých je možno shlédnout na sál a kavárnu. Zázemí pro vědce je propojeno s hlavním prostorem, aniž by došlo k narušení soukromí. Na střeše leží soukromá zahrada a skleník. V okolí, včetně starého parkoviště, vzniká prostředí, kde se lokálové mohou sejít, a zasportovat si, nebo kde si mohou hrát děti z okolní zástavby. Cílem je vytvoření příjemného biotopu jak pro faunu a flóru, tak i pro místní obyvatele.