Práce ateliérů ZAN
Coworking

Anotace
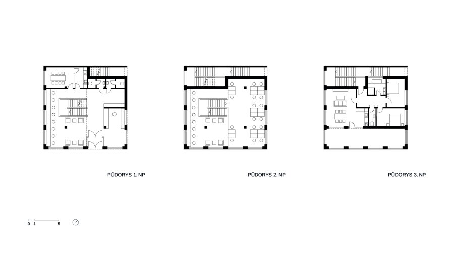
Budova se nachází v jižním rohu akademického centra. Spodní podlaží slouží jako coworkingové zázemí, které tvoří otevřený prosvětlený dvoupodlažní prostor s galerií. Interiéru dominuje masivní schodiště. Ve třetím podlaží je situován byt 3+kk s velkorysou lodžií. Vstup do bytu vede po samostatném schodišti přístupném z parteru. Fasádu budovy tvoří pravidelný rastr oken, který zároveň určuje logiku vnitřního uspořádání.